Высокочастотный виброгрохот Mogensen

Высокочастотный виброгрохот Mogensen

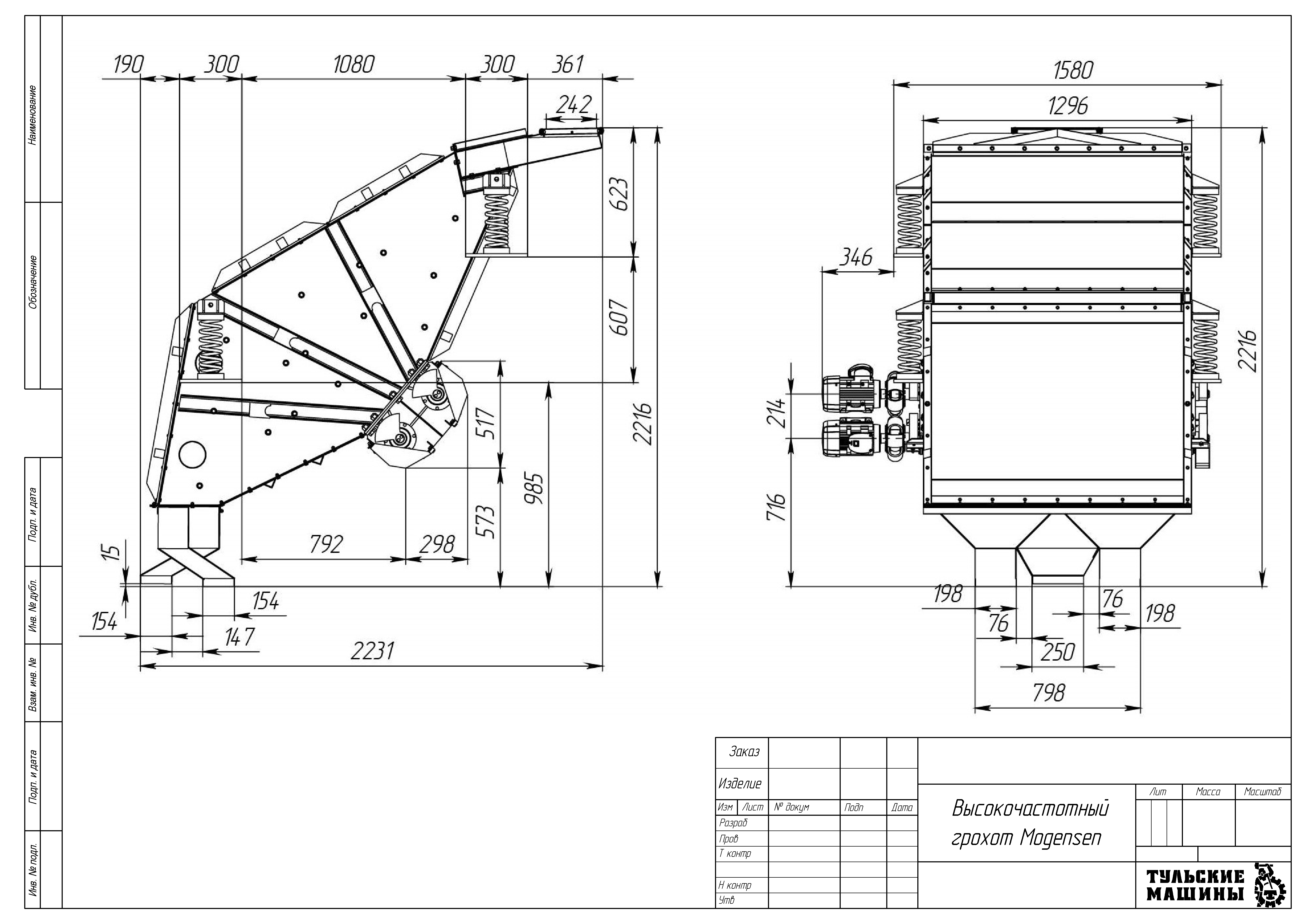
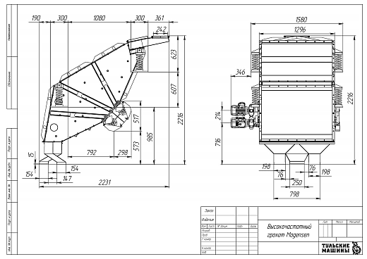
Габаритные размеры: Длина х Ширина х Высота, мм
2231х1580х2216
Масса, кг
1020
Мощность электродвигателя, кВт
2х2,2
Все характеристики
Назначение: классификация сыпучих материалов.
Пуско-наладка на вашем объекте и обучение вашего персонала
При необходимости проводим испытания с давальческим сырьем
Послепродажный сервис и плановые поставки запчастей и расходников
Цена по запросу
узнать цену
Гарантия: от 12 месяцев
Доставка: по всей России и СНГ
Сроки изготовления: от 40 рабочих дней
Подобрать решение
Андрей Федоров
Инженер-консультант
+7 (950) 921-57-50

ТЕХНИЧЕСКИЕ ХАРАКТЕРИСТИКИ — Высокочастотный виброгрохот Mogensen

Габаритные размеры: Длина х Ширина х Высота, мм:
2231х1580х2216
Масса, кг:
1020
Мощность электродвигателя, кВт:
2х2,2
Производительность, т/ч:
30
Max. входящая фракция, мм:
100
Номинальное напряжение питания, В/Гц:
380
Площадь просеивающей поверхности, м²:
1,6
Число ярусов, шт.:
3
Изготовление по вашему ТЗ
Отправить ТЗ
Реверс-инжиниринг
Обсудить задачу

ОПИСАНИЕ — Высокочастотный виброгрохот Mogensen

Наиболее эффективным способом разделения продукта на классы является применения высокочастотных вибрационных грохотов. В которых, в отличие от общераспространенных грохотов, материалу приходится многократно проходить сквозь сита с различными ячейками, каждая из которых постоянно отделяет из потока свою фракцию. За счет такого многократного просеивания материала и удается достичь высокой эффективности классификации.

Основные преимущества высокочастотных грохотов:

  • большая производительность;
  • лучшая эффективность классификации;
  • меньшие габаритные размеры;
  • возможность получить на одном грохоте большее количество фракций;
  • герметичен.

Принцип работы грохота

Исходный материал через загрузочное окно попадает в камеру с установленными под различным углом ситами, с разными размерами ячеек. За счет возвратно-поступательного движения грохота, все частицы начинают подскакивать на ситах.

В зависимости от размеров ячеек каждая фракция задерживается на своем сите по принципу работы обычного инерционного грохота. Но за счет интенсивных колебаний в замкнутом пространстве, всему материалу приходится многократно проскакивать сквозь выше размерные сита, что на порядок увеличивается эффективность классификации продукта.

Таким образом весь мелкий материал будет оставаться под нижним ситом и на выходе мы получим «чистые» классы фракций.

ЧЕРТЕЖ — Высокочастотный виброгрохот Mogensen


Обсудить задачу
Обсудить задачу
Отправьте заявку — с вами свяжется инженер:
  • Обсудить технические вопросы
  • Подготовить коммерческое предложение
  • При необходимости договориться о встрече
  • Организовать экскурсию на производство